
The Code (IBC/NFPA)
When Is an Elevator Smoke Curtain Required by Code? (IBC 3006.2 Guide)
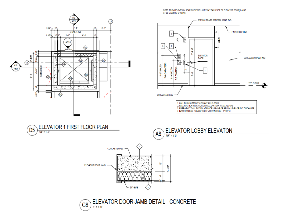
Failing to plan for elevator smoke protection is a $20,000 mistake. We break down the three main triggers of IBC 3006.2 and the five ways to stay compliant without losing square footage.






